上海招商虹桥公馆楼盘优劣点评,你选对了吗?
上海招商虹桥公馆楼盘优劣点评,你选对了吗?
一、写在最前:高房价下买房,动辄成百上千万!在考虑了地段,配套,学区以及房价后,诸位还有多少时间精力去关注楼盘内部单元,楼层上海招商虹桥公馆楼盘优劣点评,你选对了吗?,户型的优劣选择?购房前闭着眼买买买,事后可是要吃大亏的。
毕竟,承载诸位毕生积蓄以及未来几十年居住时间空间的,是房子本身,而不是其它乱七八糟,小伙伴们以为然否?

二、上海招商虹桥公馆楼盘优劣点评:今天,清岚跟小伙伴们聊的楼盘是来自于上海的招商虹桥公馆,容积率2.50(平),绿化率35%(优),停车位配比1.00(平),仅就大指标而言,优秀三星半(优于市面上75%以上楼盘)!
楼盘东一榔头西一棒槌,这么方正的地块,为啥就不选择中轴对称的布局呢?横平竖直难道不好?随它去吧,反正立面这个红顶盖我看着都有些别扭,感觉跟北京中海的某个盘有点像。小景观楼盘叠加内部核心景观带叠加单元绿化,居住指标上佳!

整体而言,调低本盘至不错三星评级,刚需盘(优于市面上65%以上楼盘),建议投资业主购买,刚需业主购买,改善业主考虑,建议业主精选单元、楼层、以及户型。

三、上海招商虹桥公馆单元楼层优劣选择篇:在单元的优劣选择上,10#楼当为本盘楼王,8#、11#楼当为本盘高性价比单元;2#、3、12#楼可适当慎重些,其余单元均不错,可持平论。
在楼层的优劣选择上:对于楼王,清岚建议小伙伴们优先考虑中高区,高区次之,低区最后;其余单元则采用常规的选楼策略来,优先考虑高区、中区次之,低区最后。

在意日照采光的小伙伴可以进行日照采光计算以优选到舒适级楼层为宜,业主亦可根据大风水对楼层进行更进一步的精选,当然了,具体情况还需具体分析。

四上海招商虹桥公馆楼盘优劣点评,你选对了吗?,上海招商虹桥公馆75㎡户型居住投资价值综合分析点评篇:
Q1:市面上75㎡的两室户实属罕见,特别是北上深等高房价地区。因此也没必要过多找茬,直接给相关部门、开发商、设计院点赞。
Q2:另外,建议设计院下次在设计小户型的时候,尽量不要开门正对餐厅,在厨房附近给餐厅找个独立空间为妙,哪怕是贴着卫生间也行。
Q3:能预留个玄关空间就更好了,要不要把厨房隔墙打掉搞个成品立体玄关?等等等吧。
初判本户型为刚需户型,给予本户型60分不错评级(优于市面上60%以上户型),建议刚需业主购买,投资业主考虑,改善业主适当考虑。建议业主精选单元楼层,以及户型。

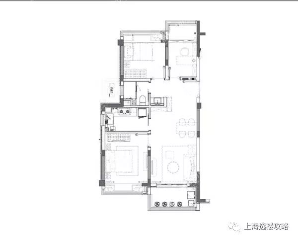
五,上海招商虹桥公馆88㎡户型居住投资价值综合分析点评篇:
Q1:正常情况下,标准级三室两厅一卫一厨户型的合理建筑面积为90平米左右,本户型88㎡且无明显的面积浪费现象单元楼风水按楼还是户型单元楼风水按楼还是户型,因此仅就投资价值指标而言非常不错,特别是高房价地区。
Q2:???进门正对卫生间???
Q3:北侧书房如此狭小的开间怕是不能跟三室扯上多少关系。外面还加了一个阳台,谁能告诉我有什么用?
Q4:北次卧开门见镜。Q5:餐厅空间麻烦。Q6:厨房贴临主卧,主卧开门向客餐厅单元楼风水按楼还是户型,私密性不佳。等等等吧。
综上,初判本户型为刚需户型,给予本户型30分一般评级(优于市面上35%以上改善户型),建议刚需业主适当考虑,建议投资业主适当考虑放弃,建议改善业主放弃,建议业主精选单元楼层,以及户型。
选楼策略:本盘的定位还是贴近纯刚需,因此建议优先考虑小户型,用以将来改善时当跳板用。
六、写在最后:本文是清岚根据自身十年楼盘设计经验,八年楼盘户型分析经验所做的独立、客观、横向综合点评,并不针对任何开发商。
写本文的目的,也仅是希望开发商能开发出更多更好的楼盘,广大购房业主可以买到更多高性价比房源,从而为整个房地产市场的健康发展略尽绵薄之力。
另外,数据若有错漏之处还请大家多多指正,但本文属于内部研判资料,所以还请莫要随意转载传播至业主群,若造成不利影响,本人有权协同追责。
点关注不迷路,上海清岚为您叩问套间商品房核心居住投资价值体系,精选高性价比完美黄金楼盘,单元,楼层,户型。上海清岚为您毕生积蓄保驾护航,佑您一家幸福安康!O(∩_∩)O【END】
微信分享
扫描二维码分享到微信或朋友圈
评论留言